Grisignano di Zocco – Capannone/laboratorio in posizione strategica
Nel cuore del Comune di Grisignano di Zocco, a pochi metri dal casello autostradale di Vicenza Sud e direttamente affacciato alla Statale 11 Padova–Vicenza, proponiamo in vendita un immobile indipendente ad alta visibilità, ideale per chi cerca spazi versatili da destinare a magazzino, laboratorio, esposizione, uffici o attività commerciale.
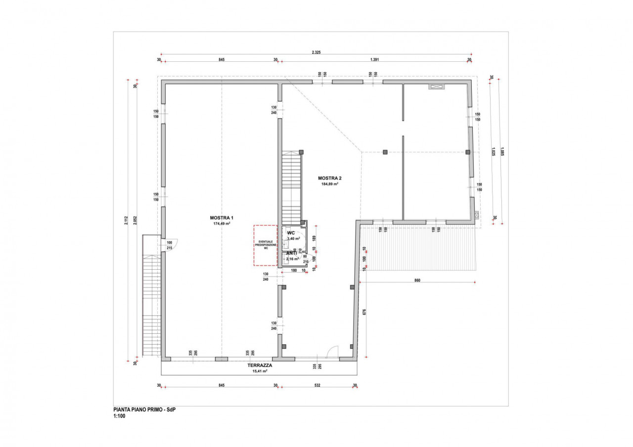
Superficie: 800 mq complessivi sviluppati su due piani da circa 400 mq ciascuno.
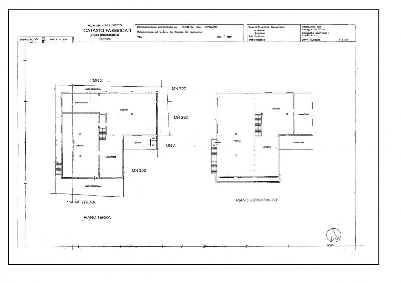
Piano terra: distribuito in 4 vani (2 laboratori, 2 spazi vendita) con doppi servizi e tettoia d’ingresso.
Piano primo: ampi vani open space per esposizione/magazzino con ulteriore bagno di servizio.
L’immobile viene venduto completamente ristrutturato:
muri portanti consolidati
tetto rifatto a nuovo
portoni, infissi e serramenti di ultima generazione
Sono escluse dal prezzo le finiture interne (impianti, pavimenti, rivestimenti), così da permettere la massima personalizzazione degli spazi in base alle esigenze della tua attività.
Libero subito – occasione unica per chi cerca visibilità e comodità logistica.
Contattaci per fissare una visita e scoprire tutto il potenziale di questo immobile.
Posizione strategica: a pochi chilometri da Mestrino, Rubano, Veggiano, Montegalda, Torri di Quartesolo, Camisano Vicentino, Piazzola sul Brenta, Longare e facilmente raggiungibile da Vicenza e Padova.
Nel cuore del Comune di Grisignano di Zocco, a pochi metri dal casello autostradale di Vicenza Sud e direttamente affacciato alla Statale 11 Padova–Vicenza, proponiamo in vendita un immobile indipendente ad alta visibilità, ideale per chi cerca spazi versatili da destinare a magazzino, laboratorio, esposizione, uffici o attività commerciale.
Superficie: 800 mq complessivi sviluppati su due piani da circa 400 mq ciascuno.
Piano terra: distribuito in 4 vani (2 laboratori, 2 spazi vendita) con doppi servizi e tettoia d’ingresso.
Piano primo: ampi vani open space per esposizione/magazzino con ulteriore bagno di servizio.
L’immobile viene venduto completamente ristrutturato:
muri portanti consolidati
tetto rifatto a nuovo
portoni, infissi e serramenti di ultima generazione
Sono escluse dal prezzo le finiture interne (impianti, pavimenti, rivestimenti), così da permettere la massima personalizzazione degli spazi in base alle esigenze della tua attività.
Libero subito – occasione unica per chi cerca visibilità e comodità logistica.
Contattaci per fissare una visita e scoprire tutto il potenziale di questo immobile.
Posizione strategica: a pochi chilometri da Mestrino, Rubano, Veggiano, Montegalda, Torri di Quartesolo, Camisano Vicentino, Piazzola sul Brenta, Longare e facilmente raggiungibile da Vicenza e Padova.
Mappa
Contattaci
INFORMAZIONI EXTRA
AMBIENTI
| Giardino | |
| Posto auto | 4 |
LIVELLI & COMFORT
| Livelli | Piano terra , Primo piano |
| Riscaldamento autonomo | |
| Ingresso indipendente | |
| Numero accessi carrai | 1 |





