Nel cuore della campagna veneta, nella tranquilla frazione di Lissaro, comune di Mestrino, proponiamo in vendita un luminoso ed elegante edificio indipendente di circa 500 mq, caratterizzato dallo stile tipico degli edifici rurali veneti.
La posizione strategica garantisce la vicinanza a tutti i principali servizi: scuole, supermercati, bar, parrucchieri e altre attività commerciali. Inoltre, la frazione è collegata al centro di Mestrino da una comoda pista ciclopedonale, rendendo gli spostamenti facili e sicuri sia a piedi che in bicicletta. La presenza della fermata dell’autobus nelle immediate vicinanze e la breve distanza dall’ingresso autostradale di Grisignano di Zocco permettono di raggiungere facilmente le principali città della regione, tra cui Padova e Vicenza.
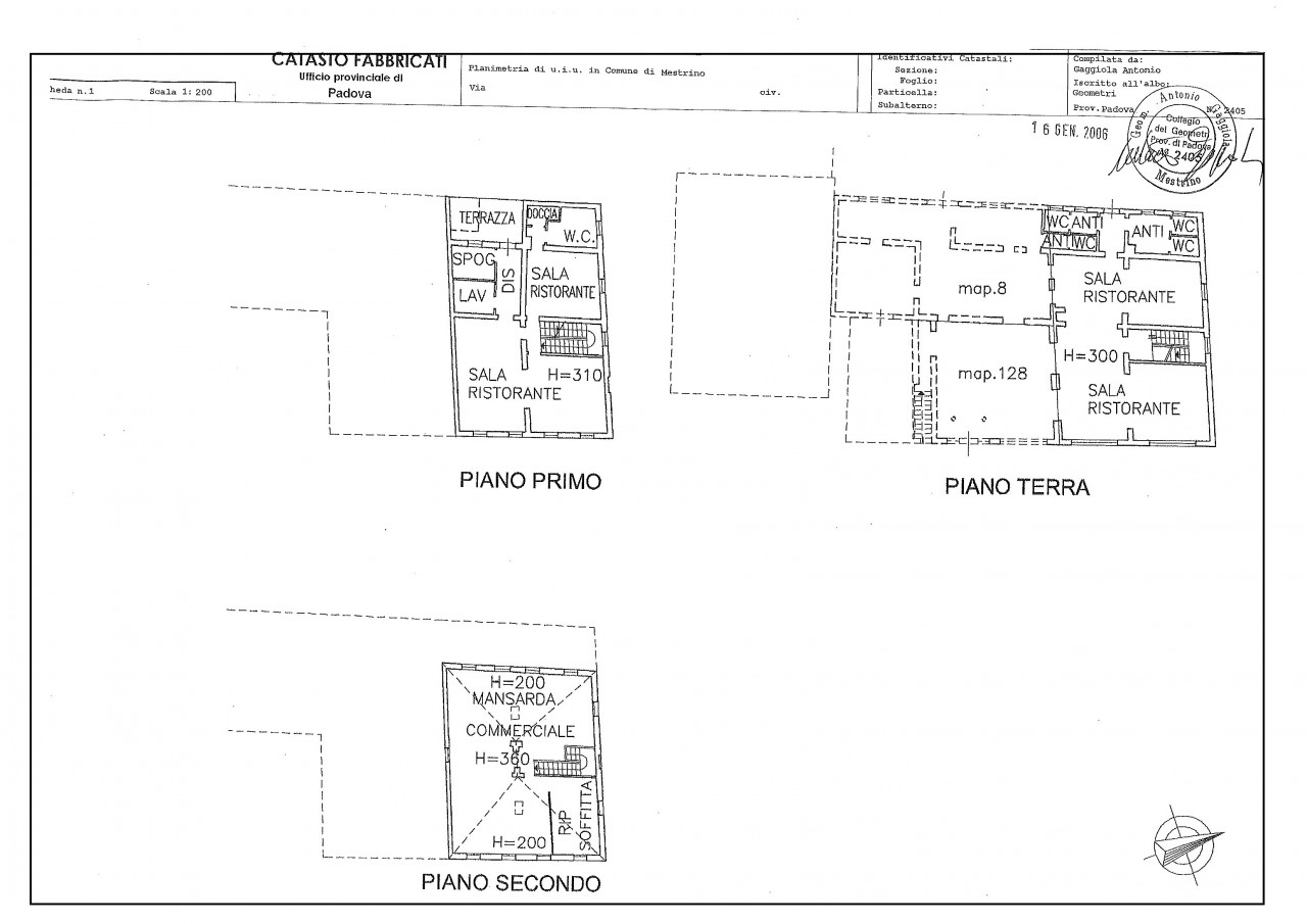
L’immobile si sviluppa su tre livelli fuori terra, caratterizzati da ampie vetrate che garantiscono un’eccezionale luminosità naturale e una connessione visiva con l’ambiente circostante. Gli spazi interni comprendono ampie aree open space e locali separati di generose dimensioni, offrendo grande flessibilità nella suddivisione e nell’utilizzo degli ambienti. Questa caratteristica lo rende perfetto per svariate destinazioni d’uso, tra cui uffici direzionali, showroom, studi professionali o attività commerciali di rappresentanza.
Le finiture rustiche, con mattoni a vista e travi in legno originali, conferiscono all’immobile un carattere unico, in grado di coniugare eleganza e tradizione. L’immobile dispone inoltre di diversi servizi igienici distribuiti su tutti i livelli, garantendo la massima funzionalità per qualsiasi attività.
Oltre al locale commerciale, la proprietà include un comodo appartamento di 70 mq situato al piano primo, raggiungibile tramite comode scale esterne. L’unità abitativa è composta da ingresso, soggiorno con angolo cottura, due camere e un bagno, rappresentando una soluzione ideale per i proprietari, per il personale di custodia o per chi necessita di un alloggio adiacente all'attività.
All’esterno, troviamo un ampio scoperto recintato di proprietà, che offre spazi versatili utilizzabili come area parcheggio o per altre esigenze operative. Il contesto in cui si inserisce l’immobile è tranquillo e ben curato, perfetto per chi desidera un ambiente professionale immerso nel verde, lontano dal caos cittadino ma al tempo stesso ben collegato.
L’immobile necessita di un restyling, offrendo la possibilità di personalizzarlo in base alle proprie esigenze e al tipo di attività da insediare. Un’opportunità perfetta per chi cerca un edificio di carattere, con ampi spazi e grande potenziale, ideale per chi vuole distinguersi e dare un’impronta unica al proprio business.
Contattaci per ricevere maggiori informazioni e per fissare una visita!
Posizione strategica: a pochi chilometri da Villafranca Padovana, Campodoro, Montegalda, Limena, Abano Terme, Piazzola sul Brenta, Camisano Vicentino, Rubano, Grisignano di Zocco, Vicenza e Padova.
La posizione strategica garantisce la vicinanza a tutti i principali servizi: scuole, supermercati, bar, parrucchieri e altre attività commerciali. Inoltre, la frazione è collegata al centro di Mestrino da una comoda pista ciclopedonale, rendendo gli spostamenti facili e sicuri sia a piedi che in bicicletta. La presenza della fermata dell’autobus nelle immediate vicinanze e la breve distanza dall’ingresso autostradale di Grisignano di Zocco permettono di raggiungere facilmente le principali città della regione, tra cui Padova e Vicenza.
L’immobile si sviluppa su tre livelli fuori terra, caratterizzati da ampie vetrate che garantiscono un’eccezionale luminosità naturale e una connessione visiva con l’ambiente circostante. Gli spazi interni comprendono ampie aree open space e locali separati di generose dimensioni, offrendo grande flessibilità nella suddivisione e nell’utilizzo degli ambienti. Questa caratteristica lo rende perfetto per svariate destinazioni d’uso, tra cui uffici direzionali, showroom, studi professionali o attività commerciali di rappresentanza.
Le finiture rustiche, con mattoni a vista e travi in legno originali, conferiscono all’immobile un carattere unico, in grado di coniugare eleganza e tradizione. L’immobile dispone inoltre di diversi servizi igienici distribuiti su tutti i livelli, garantendo la massima funzionalità per qualsiasi attività.
Oltre al locale commerciale, la proprietà include un comodo appartamento di 70 mq situato al piano primo, raggiungibile tramite comode scale esterne. L’unità abitativa è composta da ingresso, soggiorno con angolo cottura, due camere e un bagno, rappresentando una soluzione ideale per i proprietari, per il personale di custodia o per chi necessita di un alloggio adiacente all'attività.
All’esterno, troviamo un ampio scoperto recintato di proprietà, che offre spazi versatili utilizzabili come area parcheggio o per altre esigenze operative. Il contesto in cui si inserisce l’immobile è tranquillo e ben curato, perfetto per chi desidera un ambiente professionale immerso nel verde, lontano dal caos cittadino ma al tempo stesso ben collegato.
L’immobile necessita di un restyling, offrendo la possibilità di personalizzarlo in base alle proprie esigenze e al tipo di attività da insediare. Un’opportunità perfetta per chi cerca un edificio di carattere, con ampi spazi e grande potenziale, ideale per chi vuole distinguersi e dare un’impronta unica al proprio business.
Contattaci per ricevere maggiori informazioni e per fissare una visita!
Posizione strategica: a pochi chilometri da Villafranca Padovana, Campodoro, Montegalda, Limena, Abano Terme, Piazzola sul Brenta, Camisano Vicentino, Rubano, Grisignano di Zocco, Vicenza e Padova.
Mappa
Contattaci
INFORMAZIONI EXTRA
AMBIENTI
| Soggiorno | |
| Soggiorno angolo cottura | |
| Ripostigli | +2 |
| Mansarda | |
| Giardino | |
| Posto auto | 10 |
| Sottotetto |
LIVELLI & COMFORT
| Livelli | Piano terra , Primo piano , Ultimo piano |
| Riscaldamento autonomo | |
| Animali ammessi | |
| Ingresso indipendente | |
| Numero accessi carrai | 1 |
| Numero portoni | 1 |



